Критерии
Цена
 
Площ
кв.м.
 
кв.м.
Спални
 
Етаж
 
Година на строеж
 
Начин на отопление
Средство за отопление

Къща за продажба

София Град, Драгалевци

500.000€ | 977.915,00лв

Ти Ай ХОУМС

Агенция Ти Ай Хоум има удоволствието да ви предложи -
Къща в затворен комплекс от три къщи в парцел с площ от 2540 м2
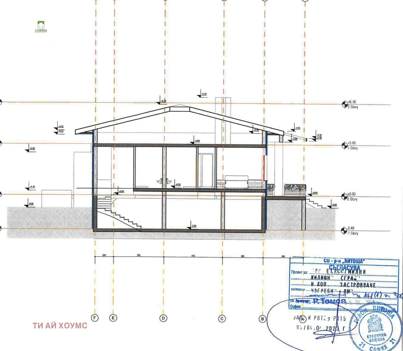
. Имотът е на три нива: сутерен с гаражи за две коли и помощни помешения-площ 120 м2, основен етаж на кота-0 състоящ се от: голям хол с дневна и кухненски бокс, три спални с три бани, голяма тераса пред южната страна на къщата с площ 120м2. Таванско помещение с нормална височина за живеене с площ 120м2. Общо цялата използваема площ ще е 360 м2. Към къщата се полага и самостоятелен двор от 850 кв.м. Къщите са ориентирани изцяло на юг, с изглед към Витоша.
Двете къщи са на груб строеж, а третата на първа плоча.
За повече информация звъннете на посочения телефон!!!

ID
17001273
Квадратура
200 кв.м.
Цена на кв.м.
2.500€ | 4.889,58лв
Област
Драгалевци (София Град)
Етаж
1-ви
Година на строеж
2024
Нива
1
Статус
Ново строителство

Удобства

  • Парцел: 850 кв.м.

Share